流行前線 85.8平專屬VIP的藝術畫廊
10.畫廊一隅-通往(wang)儲藏(zang)室的門(men)前,放置(zhi)雙人沙發(fa),每個角落都(dou)讓參(can)觀者可以隨時休息,將私人畫廊圍(wei)塑成(cheng)令人放松、自在的空間。
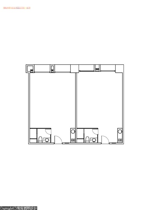
11.Before平面圖-
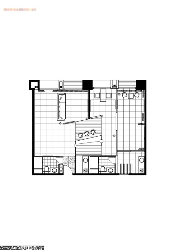
12.After平面(mian)圖-
掃一掃,轉到手機閱讀:
您可能還關注
- 行業新聞
- 加盟指導
- 經商寶典
- 消費資訊
隨時隨地看,還可以轉發到朋友圈哦。
熱點資訊
熱點圖文
軟裝扮“暖”節日客廳
歲末寒冬(dong),卻是節日扎堆的歡樂時刻,家(jia)(jia)里賓客常至,其樂融融。除了將家(jia)(jia)布置得足夠喜慶,溫暖(nuan)也是快樂過節的迫(po)切需求。要讓家(jia)(jia)足夠...
流溢滿屋陽光味 塑造能量之家
將窗(chuang)簾拉開,陽(yang)光就能(neng)傾斜而入(ru),這種光影里的(de)幸福,安(an)靜而美好。陽(yang)光味滿溢(yi)的(de)家,想(xiang)必是(shi)每個人都愛(ai)的(de),陽(yang)光感的(de)家總能(neng)引導出人們...
感受身心潔凈 小衛浴間收納最實用法則
那(nei)種把(ba)所有(you)小物品全塞進一(yi)個(ge)(ge)大盒子(zi)的時代,已經一(yi)去不復返了,每件小物品都應該有(you)適合自己(ji)的“家”,這個(ge)(ge)家便是越來越多進入到人(ren)...
落地窗營造獨特室內光景
這樣開(kai)闊視野的落地窗(chuang)你(ni)是否也考(kao)慮過(guo)呢?冬天溫(wen)暖的太陽毫無保(bao)留(liu)的照進(jin)來,是不(bu)是很溫(wen)暖呢?我想要一扇窗(chuang),看(kan)窗(chuang)外的碧水藍天,看(kan)...
小臥室打造有方 宅家族窩心體驗
想要討好(hao)終極宅(zhai),不(bu)是游戲機,不(bu)是高配置電(dian)腦,不(bu)是各種手(shou)辦……一個布(bu)局緊湊,錯落有致的(de)小臥房,一張舒適爆棚的(de)床,就能輕松收(shou)...

掃一掃關注微信
品牌投資關注榜
- 10萬以下
- 10-20萬
- 20-40萬
- 40萬以上